



Красивий інтер’єр - це лише частина задачі. Справжній дизайн має бути зручним для щоденних рутин, відображати характер і створювати відчуття дому.
Ми допоможемо вам побудувати саме таке середовище - продумане до деталей, естетичне, практичне й адаптоване саме під ваш спосіб життя
Ви отримуєте повний цикл: планування, фотореалістичні 3D-візуалізації, робочу документацію, консультацію по підбору матеріалів. За бажанням організовуємо реалізацію проєкту з авторським наглядом. Усе відбувається злагоджено, зрозуміло і без зайвих клопотів з вашого боку. Результат - інтерʼєр, у якому хочеться жити.
Ми обговорюємо ваші цілі, стиль життя та очікування від простору. Формуємо бачення, яке стане основою майбутнього проєкту.
Команда робить заміри об'єкту, укладаємо договір. Фіксуємо всі параметри квартири та узгоджуємо вимоги: від побутових дрібниць до ваших особистих звичок. Це гарантує, що проєкт буде працювати саме для вас.
Створюємо планування, підбираємо референси, презентуємо рішення й обговорюємо варіанти. Ви бачите 3D-візуалізацію майбутнього інтер’єру та можете вносити зміни ще до старту робіт.
Ви отримуєте повний пакет для реалізації: детальне планування, робочу документацію, фотореалістичні 3D-візуалізації всіх приміщень, а також консультації у підборі матеріалів, меблів і освітлення.
Це дозволяє бачити майбутній інтер’єр ще до початку ремонту та уникати будь-яких сюрпризів. Ми можемо забезпечити авторський нагляд, щоб кожен сантиметр виглядав саме так, як було задумано.
.png)

У типових квартирах все ніби є, але чомусь незручно. Речі не поміщаються, розетки не там, де треба, кухню доводиться обходити.
Грамотне планування вирішує ці проблеми ще до початку ремонту. Простір розподіляється так, щоб кожен метр працював на комфорт.
Створюється кілька функціональних варіантів. Клієнт бачить, як виглядатиме кухня, де буде шафа, чи вистачить місця для робочої зони. Обирається той варіант, що підходить під реальні звички мешканців, а не під умовний стандарт. Саме тут закладається зручне майбутнє інтер’єру.

Складно купувати меблі чи плитку, коли не уявляєш, як це виглядатиме разом. Ще складніше - усвідомити помилку після ремонту. Саме тому створюються фотореалістичні візуалізації всіх приміщень, де все вже зібрано: кольори, фактури, меблі, освітлення. Інтерʼєр не треба уявляти - його можна побачити.
3D-візуалізація - це не просто картинка. Це інструмент, який допомагає ухвалювати рішення, уникати помилок і впевнено рухатися до результату.
Ваші вигоди:

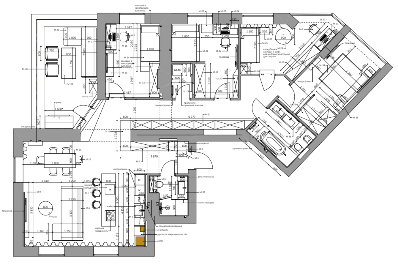
Без чітких креслень проєкт втрачає форму. Робоча документація в Orange Studio - це інструкція для кожного виконавця: розгортки стін, плани розеток, освітлення, сантехніки, меблювання.
Документи оформлені так, щоб бригада працювала без уточнень. Якщо потрібно, додається авторський супровід, щоб усе реалізувалось саме так, як задумано.


.png)
